2h+k+parveke Vantaa Maauunintie 18 C 29, 63m2, 105 000 €
Luhtitalo, Maauunintie 18, 01450, Vantaa
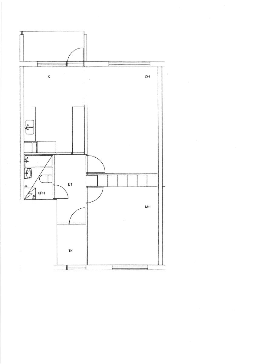
Kuvaus
Kulomäessä luhtitalokaksio 63,5m2 hyvässä taloyhtiössä, jossa on tehty mittavia korjauksia vuosien varrella. Taloyhtiön rakennukset rajaavat kivaa sisäpihaa, joka palvelee asukkaita.
Asunto sijaitsee päättyvän tien päässä, läheiselle metsäalueelle on aloitettu rakentamaan Elmon urheilupuistoa ja valmistuessaan siellä on mm. uimahalli, jalkapallokentät, kiipeilypuisto, jäähalli sekä mahdollinen maa-uimala.
Huom! Myyntihinta vain 97.633,50 eur + taloyhtiön laina 17.366,50 eur!
Esittelyt ja lisätiedot puh. 0500 883 732 tai markku@mrautanen.com
Yhteystiedot ja esittelyt
| Yhteystiedot |
|
|---|---|
| Esittelyt | 15.03.2026 12:00 - 12:30 |
Asunnon perustiedot
| Kohdenumero | 20300645 |
|---|---|
| Sijainti |
|
| Tyyppi | luhtitalo |
| Hallintamuoto | asunto-osakeyhtiö |
| Omistusmuoto | oma |
| Huoneistoselitelmä | 2h+k+parveke |
| Asuinpinta-ala m2 | 63.5 |
| Yhteensä m2 | 63.5 |
| Kerros | 1 |
| Kerroksia | 2.0 |
| Rakennusvuosi | 1975 |
| Käyttöönottovuosi | 1975 |
| Vapautuminen | sopimuksen mukaan |
Hinta ja kustannukset
| Velaton hinta | 105000 |
|---|---|
| Myyntihinta | 87633 |
| Yhtiövastike | 407.5 |
| Rahoitusvastike | 173.5 |
| Hoitovastike | 234.0 |
| Vesimaksu |
|
| Lisätietoja maksuista | Autopaikkamaksut 8,00, 10,00 ja 14,00 eur. vesimaksu on ennakkomaksu, tastaan vuosittain. |
Asunnon lisätiedot
| Yleiskunto | hyvä |
|---|---|
| Energialuokka | C2018 |
Asunnon tilat ja materiaalit
| Katto |
|
|---|---|
| Kylpyhuoneen kuvaus |
|
| Makuuhuoneiden kuvaus |
|
Taloyhtiö
| Taloyhtiön nimi | Asunto Oy Kulokisko |
|---|---|
| Isännöitsijän yhteystiedot | Kontu Isännöinti Oy Oskari Akselinmäki aspa@kontuoy.fi Läkkisepäntie 23, 00620 Helsinki |
| Energialuokka | C2018 |
| Tontin pinta-ala | 14704.0 |
| Tontin omistus | oma |
| (Taloyhtiön) Rakennukseen tehdyt korjaukset ja remontit | ikkunoiden ja ulko-ovien uusiminen: 2003, antennijärjestelmän digivalmius: 2004, raja-aitojen rakentaminen: 2005, parveke- ja julkisivielementtien kuntotutkimus 2005, yläpohjan lisälämmöneristys: talot A-G v.2005, parveke- ja luhtikäytävien korjaus: 2007-2008, putkistojen kuntotukimus 2007, kylpyhuoneiden kuntotarkastus: 2008, vesikattokorjausten hankeselvitys: 2011, G-talon putkisaneeraus, käyttövesiputkien uusinta 2009, C-talon saunan korjaus: 2009, leikkialueen kunnostus: 2011-2012, käyttövesiverkoston saneeraus loput talot sisäpuolisten käyttövesaiputkien uusinta: 2012, vesikattosaneeraus: 2013, salaojasaneeraus A-B-talot, :2013, kahden talosaunan korjaus: 2013,lämmitysjärjestelmän puhdistuslaitteiston asennus: 2013, lämpöputkikanaalien saneerauksen suunnittelu ja toteutus: 2014, A-talon pesutuvan saneeraus: 2014, grillikatos: 2014, parkkipaikan laajennus: 2015, ilmanvaihdon puhdistus ja säätö G-talo: 2015, lämmönjakolaitteiston uusiminen: 2016, ilmanvaihdon puhdistus ja säätö: 2016, lukituksen uusiminen: 2017, C-talon pyykkituvan saneeraus, elementtisaumausten uusiminen 2018, C-talon pyykkituvan saneeraus 2018, G-talon IV-puhdistus ja mittaus, säätö 2019, C- ja D-talojen salaojien ja sadevesiohjauksen toteutus 2019, salaojaselvitys ja suunnittelu E-, F ja G-talot 2021, kameravalvonnan asentaminen parkkialueelle 2022, taloyhtiön IV-.koneiden uusiminen, IV-kanavien nuohous 2022, E, F ja G-talojen salaojien ja sadevesiohjauksen loppuunsaattaminen 2023, piha-alueen asfaltointi 2024. |
| Tiedossa olevat tulevat korjaukset/remontit | Kunnossapitotarve seuraavien viiden vuoden aikana, nämä päätetään vuosittain yhtiökokouksissa; -vanhan kylmäkellarin purku ja uudelleenkäytön suunnittelu, -huoneistojen palovaroittimien uusiminen, -sokkelin saneeraus ja maalaus, -alapohjien kunnostus, -patteriventtilien- ja termostaaattien uusiminen, lämmityksen perussäätö, -viemäreiden kuntotutkimus, -huonokuntoisten kylpyhuoneiden saneereus, huoneistojen vesimittareiden uusiminen, -olemassa olevan pysäköintialueen peruskorjaus |
